Réhabilitation d’une propriété à Espelette
Visite de site, diagnostic visuel de l’état du bâti, étude capacitaire et aide à la décision
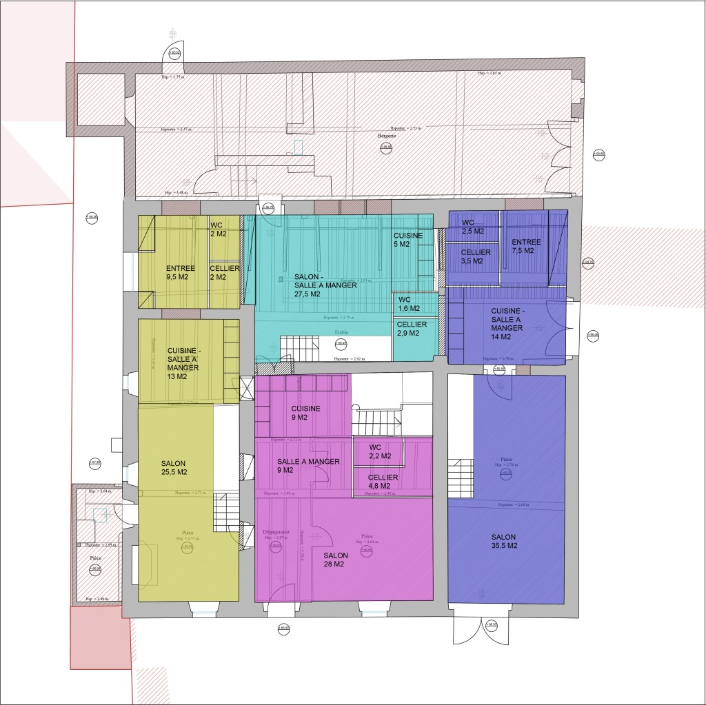
Dans le but d’accueillir des familles au bourg, réhabilitation d’une ancienne ferme en 5 logements individualisés : accès et jardins indépendants, pas de superposition grâce aux duplex, espaces en commun limités à l’extérieur. Faisabilité destinée à un opérateur de logements sociaux et en Bail Réel Solidaire.
C.A.U.E 64 pour l’EPFL-Pays Basque et la Commune d’Espelette. 2020
500 m² – 800 K € HT travaux







