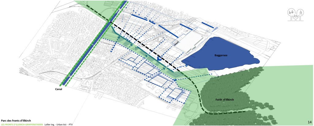
Nouveau quartier Baggersee à Illkirch-Graffenstaden (67)
Etude urbaine grand projet péri-urbain
Un nouveau quartier mixte entre canal et lac, intégrant une zone commerciale existante.
Écosystème urbain, articulation des mobilités, pôle attractif en zone péri-urbaine, densités raisonnées et maraîchage.
Urban Act pour la Communauté Urbaine de Strasbourg. 2011-2013
50 hectares opérationnels. 3 600 logements, 380 000 m2 SdP. 100 M euros de travaux.
Avec Lollier Ingénierie et PTV ingénieurs mobilités




